
0 引言
1 试验设计
1.1 试验装置
1.2 试验材料
1.3 泥浆脱水试验方案与步骤
1.3.1 试验方案
表2 试验方案设计Table 2 Design of test scheme |
| 试验 组别 | 试验 编号 | 排水高 差/m | 泥浆厚 度/mm | 排水内 径/mm | 备注 |
|---|---|---|---|---|---|
| 内径大小 流态试验 | P-1-1 | 1.0 | 100 | 6 | 负压排水, 中途重新启动 |
| P-1-2 | 1.0 | 100 | 4 | 负压排水 | |
| 排水高差 与泥浆厚 度对比 试验 | F-1-1 | 0 | 100 | 4 | 重力排水 |
| F-1-2 | 0.5 | 100 | 4 | 负压排水 | |
| F-1-3 | 1.5 | 100 | 4 | 负压排水 | |
| F-1-4 | 2.0 | 100 | 4 | 负压排水 | |
| F-2-1 | 0 | 300 | 4 | 重力排水 | |
| F-2-2 | 0.5 | 300 | 4 | 负压排水 | |
| F-2-3 | 1.0 | 300 | 4 | 负压排水 | |
| F-2-4 | 1.5 | 300 | 4 | 负压排水 | |
| F-2-5 | 2.0 | 300 | 4 | 负压排水 |
1.3.2 试验步骤
2 排水管内径对负压的影响分析
3 透水空腔内负压情况分析
3.1 排水高差对透水空腔内负压变化情况的影响
3.2 泥浆厚度对透水空腔内负压变化的影响
4 泥浆脱水效果分析
4.1 负压作用对排水效果的影响
4.2 排水高差对负压排水量的影响
4.3 负压排水高差对处理后泥浆含水率的影响
图10 低厚度泥浆试验取样点位置横断面示意图Fig.10 Cross-section of sampling location for small-thickness mud |
表3 不同排水高差下负压排水处理后低厚度泥浆试样含水率测定Table 3 Moisture content of small-thickness mud specimens after negative pressure drainage treatment |
| 排水高 差/m | 试样编号 | 含水 率/% | 排水高 差/m | 试样编号 | 含水 率/% |
|---|---|---|---|---|---|
| 0.5 | 1-A | 85.63 | 1.5 | 3-A | 72.64 |
| 1-B | 84.32 | 3-B | 70.68 | ||
| 1.0 | 2-A | 74.21 | 2.0 | 4-A | 69.59 |
| 2-B | 72.41 | 4-B | 68.21 |
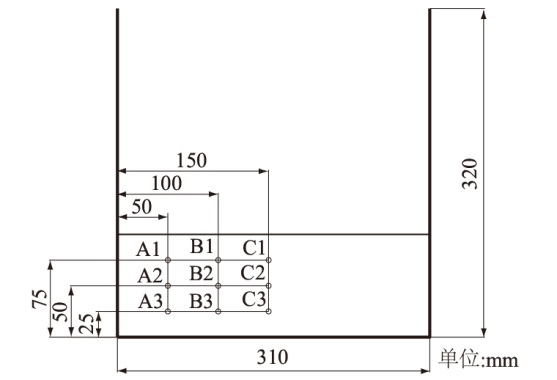
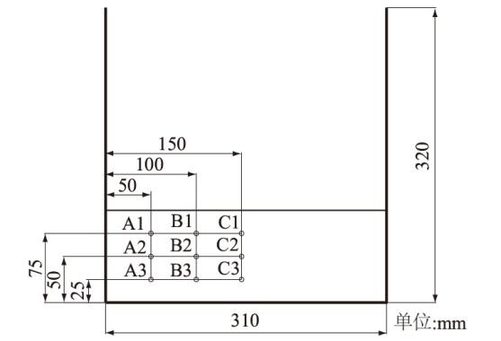
图11 300 mm厚度泥浆试验取样点位置横断面示意图Fig.11 Cross-section of sampling location for mud specimens with 300 mm thickness |
表4 不同排水高差下负压排水处理高厚度泥浆不同位置泥浆含水率Table 4 Moisture content of mud at different positionsof thick mud specimens treated by negative pressuredrainage method with varied drainage height difference |
| 排水高 差/m | 试样编号 | 含水 率/% | 排水高 差/m | 试样编号 | 含水 率/% |
|---|---|---|---|---|---|
| 0.5 | 1-A1 | 203.08 | 1.5 | 3-A1 | 145.71 |
| 1-A2 | 125.76 | 3-A2 | 125.71 | ||
| 1-A3 | 105.60 | 3-A3 | 98.50 | ||
| 1-B1 | 193.75 | 3-B1 | 132.73 | ||
| 1-B2 | 112.50 | 3-B2 | 104.00 | ||
| 1-B3 | 93.14 | 3-B3 | 77.36 | ||
| 1-C1 | 173.33 | 3-C1 | 125.00 | ||
| 1-C2 | 110.45 | 3-C2 | 80.00 | ||
| 1-C3 | 90.00 | 3-C3 | 66.67 | ||
| 1.0 | 2-A1 | 151.58 | 2.0 | 4-A1 | 139.78 |
| 2-A2 | 123.57 | 4-A2 | 126.40 | ||
| 2-A3 | 101.43 | 4-A3 | 97.06 | ||
| 2-B1 | 166.74 | 4-B1 | 121.45 | ||
| 2-B2 | 118.85 | 4-B2 | 101.62 | ||
| 2-B3 | 92.43 | 4-B3 | 66.26 | ||
| 2-C1 | 150.60 | 4-C1 | 94.32 | ||
| 2-C2 | 99.53 | 4-C2 | 67.34 | ||
| 2-C3 | 85.71 | 4-C3 | 60.23 |
