
0 引言
1 吊脚桩局部稳定破坏模式
1.1 沿下卧基岩结构面发生滑动破坏(破坏模式1)
1.2 沿墙底结构面发生滑动破坏(破坏模式2)
1.3 沿墙底发生圆弧滑动(破坏模式3)
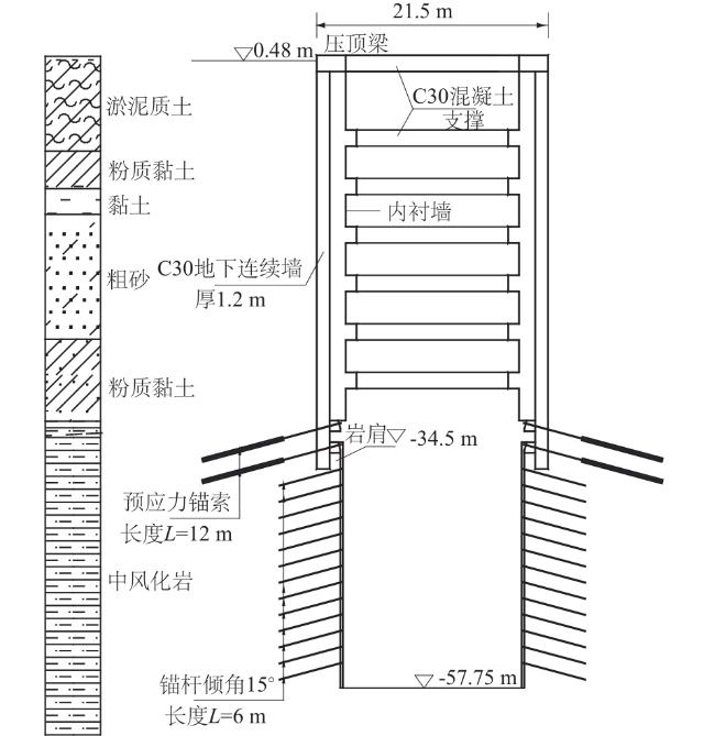
2 工程实例
2.1 工程概况
2.2 支护结构形式
2.3 地质条件
表1 中风化岩体结构面力学参数Table 1 Mechanical parameters of structural planes in moderately weathered rock masses |
| 序号 | 岩体 | 天然重度/ (kN·m-3) | 黏聚力/ kPa | 摩擦角 φ/(°) |
|---|---|---|---|---|
| 1 | 泥岩 | 25.4 | 20 | 14 |
| 2 | 泥质粉砂岩 | 25.6 | 50 | 19 |
| 3 | 砂岩、砾岩 | 26.0 | 80 | 24 |
| 4 | 片麻岩、花岗岩 | 26.8 | 200 | 35 |
2.4 局部稳定安全系数计算
表2 吊脚桩局部稳定性计算结果Table 2 Calculation results of local stability of end-suspended piles |
| 序号 | 岩体 | 稳定安全系数 | ||
|---|---|---|---|---|
| 沿下卧基岩 滑动K1 | 沿墙底结构面 滑动K2 | 沿墙底圆弧 滑动K3 | ||
| 1 | 泥岩 | 1.015 | 1.019 | 0.817 |
| 2 | 泥质粉砂岩 | 1.591 | 1.501 | 1.182 |
| 3 | 砂岩、砾岩 | 2.145 | 2.006 | 1.382 |
| 4 | 片麻岩、花岗岩 | 3.795 | 3.475 | 1.587 |
